VKPK Dossier: from the logics of the fragile, a resistant material. Owar Architects + Evan Sellmyer, Casa Coya. Machalí, Chile. By: Gonzalo Pedro Carrasco Purull + Livni.
Resistant quality of a body is usually measured by another opposition offered. The latter does not necessarily require a precise embodiment, but may take less obvious forms such as the action exerted by a force. In architecture one could argue that it is through the concrete of the building – especially the latter understood as applied physics – where the bodies resistant quality is made evident. Thus by building things «weigh» offer «resistance», strive to fall and roll over the floor, thus showing the contrivance that involves the construction of all architecture. Where the book not only refuses to fall, but also to deteriorate, to keep out water, wind, to keep out the heat and cold. A quality of the construction of «resistance» to an environment understood as hostile, inside defending all that is considered vulnerable, valuable and sensitive.
It is this quality solid structure of the architecture that has become fuzzy and somewhat blurred in recent years. Years where the boundary between the fields of architecture and entertainment, entertainment and show business have generated a whole class of buildings where the tectonic relations between the elements that shape it becomes the consistency of what Koolhaas called «junkspace.» Spaces where there is gypsum plasterboard, the «board» invisible «, the» stuck «, the» staple. » Scenarios where the building is no longer understood as the articulation of the parties, but as the build up to the saturation of «manufacturer’s instructions, thus depriving the architecture of everything that made graspable beyond the smoothness coated paper in a magazine. Tectonics – at least for Koolhaas – has the same temporary and memorable than a screen saver.
That is why in the midst of this scene emphasizes the exercise of certain architectural offices that still advocate an approach to architecture seen mainly as construction. Thereby overcoming any gaps between what is commonly considered split fields. A divide between architecture and construction, between «art» and «trade» between «ends» and «Media» in light of the problems and needs of the global agenda in recent years, has become a border requires be demolished.

Impregnable.
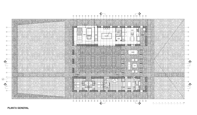
Casa Coya- designed by the Chilean Owar Architects (Alvaro Benitez + Emilio de la Cerda + Thomas Folch; http://www.owar.cl) + Evan Sellmyer – can be framed between those works where the means and ends maintain their consistency. Located in the mountains of Rancagua, on a plateau boldos and thorns, located on the south bank of the river Cachapoal Coya House appears as a horizontal volume strongly absorbed.
A characteristic of absorption – where even the evidence of the existence of a cover has been silenced – leaves as the only element of mediation with the surrounding surfaces emphatic about mud plastered walls. A strategy in which the place has been read mostly as a climate to which we must resist. A site where you have to deal with temperatures of 37 degrees in summer and snow volumes up to 50 cms. in winter.

A reversible engine.
Thus, in response to these adverse conditions is that they decided to build a patio. A strategy that away from any association with vernacular architecture, is implemented as a way of making your home a «reversible device.» Where the court acted – with a provision in bands that released the central third of the plant – as a diaphragm that allows the shutter opening and supports the «breathing» of the house. This same condition of the patio as an artifact of homeostasis, is what has eliminated all nostalgic reading this space, a recurring (until exhaustion) in a part of Chilean architecture of the eighties.
Patio: a displaced centrality.
A strict grid – derived from the modulation of straw bales forming the perimeter wall – imposes the order of the plant, moving the patio. A «displaced central» where the court appears as a hybrid space, midway between dry garden room.
The same grid that determines all other measures of the house, lining Owar operation that establishes a tradition deeply rooted in the modern movement. Where – and from the lessons of Gropius, a Neuffert or Emilio Duhart – the grid is the generator and absolute control of the plant. Thus, the highly absorbed nature Casa Coya is further reinforced by the decision to locate the openings of the windows from the need for openness and occlusion of the indoors. A decision that reinforces a kind of disregard for the most representative element of architecture, as is the facade.
In the Casa Coya all the facades are fixed by decisions made from the plant, rendering the tool architecture improved analytical capacity. A decision is not free, because it creates instability in the same work. Instabilities that result in the presence of multiple asymmetries and imbalances in the body from the outside appears to be unique.
These imbalances – or des-balances – produce a plant enclosures constructed from highly individualized. Spaces dumps themselves, relative autonomy, where up to the heights of these are managed to emphasize this aspect. Making the journey – and at this point if it matches Owar vernacular architecture – a series of independent events, individuals.
As Chilean country houses – where the patio is the element of mediation for travel between room and bedroom – in the Casa Coya is through the central courtyard of displaced, where environmental equilibrium is reached the house. Through which the routes are sorted and the interior views are displayed. Absorption operation freeing the facade of its representative role, where the architect is not seeking to fix a composition. But is on the contrary, it is joined by the opening and closure decisions required by such highly individualized indoor enclosures.
What releases the deeply analytical approach – where the grid floor and down the order and action – is the subject of what they are made of wall surfaces of these walls. A decision that his presence back to the wall material – texture, color, temperature – leaving the window and door openings to drift, allowing them to conform, to seek an accommodation with no restrictions on the merits without shades of mud.
The walls and woodwork.
This highly analytical approach – set by the plant – is what makes the operation behind the House leadership Coya – rather than the composition – is the assembly. Assembly not only results in a «fit» of the fixed volume enclosures around the house, but also assembling that appears in the design of a wall that is not wall. An element between the finish and thickness of a load bearing wall, and modular logic of the woodwork.
Thus the structure rests on a network of impregnated wood, among which are disposed of wheat straw bales. Which not only serve as natural insulation, but as a cohesive force between the woodwork and the plaster of clay. Using traditional adobe wall, a work of precision assembly.
The strength of the model: land and water.
This duality of a construction system that ranges from monolithic wall self-assembly of the woodwork, gave excellent results with the seismic behavior. This fact was proven in the past earthquake that struck in February 2010 the central-southern Chile.
This quality of resistance that the construction adopted in the Casa Coya, not only appeared in the execution of the work, but expanded to other project tools and representation chosen by the architects. Highlighted including the manufacture of a number of models implemented on the ground. Models from the fragility of its constituent material, offered tough resistance to the architects. While the architecture model now appears more like a seduction element of verification, Owar models representation is not exempt from the restrictions of the building. Where the model – like the built work – resistance.
Construction, or the logic of the fragile.
Construction is well understood – as an analytical operation – through which deploys the logic of a material that offers resistance. Hence, the carpentry, the grid, the modules of bundles, are all tools to make the act of building, implementing a series of logical operations. Where construction is rendered more apparent. And to put in mathematical terms, we can say that this «is derived.» And hence mismatches, des-balances and imbalances of enclosures find their accommodation in accordance with the intended order understood as logical. A construction that starts from the fragility – not just physically – but of the fragility that gives the certainty that architecture always resistance. VKPK.
Casa Coya. Machalí, Chile.
Owner: Agricultural P. Land and Timber Co. Ltd.
Authors: Owar Architects (Alvaro Benitez, Emilio de la Cerda, Tomas Folch) – Chile / Evan Sellmyer – USA.
Contributors: Patricio Larraín, Agustín Infante.
Contractor: Hernandez and Bueno Ltda.
Location: Coya, Machalí. Region VI. Chile.
Built area: 460 M2.
Year of design and construction: from 2008 to 2010.
Technical Advisors:
Calculation: José Manuel Morales.
Bales, Mary Blender.
Stucco: Sergio Briceño.
Predominant materials:
Structure: impregnated wood.
Roofing: handmade clay tiles.
Walls: straw bales.
Revoke: mud.
Socket: stone.




