Dossier VKPK: desde las lógicas de lo frágil, una materia resistente. OWAR Arquitectos + Evan Sellmyer, Casa Coya. Machalí, Chile. Por: Gonzalo Carrasco Purull + Pedro Livni.
La cualidad resistente de un cuerpo generalmente es medida por otro que le ofrece oposición. Este último no necesariamente exige una corporeidad precisa, sino que puede adoptar formas menos obvias como puede ser la acción ejercida por una fuerza. En arquitectura se podría afirmar que es a través de lo concreto de la construcción – entendida esto último sobretodo como física aplicada – donde esta cualidad resistente de los cuerpos queda puesta en evidencia. Es así como a través de la construcción las cosas “pesan”, ofrecen “resistencia”, se esmeran por caer y volcarse al suelo, evidenciando así el artificio que implica la construcción de toda arquitectura. En donde la obra no sólo se resiste a caer, sino también a deteriorarse, a dejar entrar el agua, el viento, a mantener fuera el calor y el frío. Una cualidad de la construcción de “resistencia” hacia un entorno entendido como hostil, defendiendo en su interior todo lo que es considerado vulnerable, valioso y delicado.
Es esta cualidad resistente de la construcción de la arquitectura la que se ha vuelto difusa y algo borrosa en los últimos años. Años en donde el límite entre los campos de la arquitectura y el entretenimiento, el espectáculo y el show-business, han generado toda una clase de edificios en donde la relación tectónica entre los elementos que le dan forman adquieren la consistencia de lo que Koolhaas ha llamado “junkspace”. Espacios en donde reina el yeso-cartón, la “junta-invisible”, el “pegado”, el “engrapado”. Escenarios en donde la construcción ya no se entiende como la articulación de las partes, sino que como la acumulación hasta la saturación de “instrucciones del fabricante”, despojando de esta manera a la arquitectura de todo aquello que la hacía aprensible más allá de la tersura del papel couché de una revista. Una tectónica – que al menos para Koolhaas – , tiene el mismo carácter transitorio y memorable que el de un protector de pantalla.
Es por esto que en medio de esta escena, destaca el ejercicio de ciertas oficinas de arquitectura que aún defienden un acercamiento a la arquitectura considerada principalmente como construcción. Superando así toda brecha entre lo que es considerado comúnmente campos escindidos. Una brecha entre arquitectura y construcción, entre “arte” y “oficio”, entre “fines” y “medios”, que a la luz de los problemas y necesidades de la agenda global de los últimos años, se ha vuelto una frontera que exige ser derribada.
Inexpugnable.
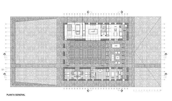
La Casa Coya – proyectada por los chilenos de OWAR Arquitectos ( Alvaro Benítez + Emilio de la Cerda + Tomás Folch ; http://www.owar.cl ) + Evan Sellmyer – puede enmarcarse entre aquellas obras en donde los medios y los fines mantienen su coherencia. Ubicada en la cordillera de Rancagua, sobre una meseta de boldos y espinos, emplazada en la ribera sur del río Cachapoal, la Casa Coya aparece como un volumen horizontal fuertemente ensimismado.
Una característica de ensimismamiento – en donde hasta la evidencia de la existencia de una cubierta ha sido silenciada – deja como único elemento de mediación con el entorno las superficies rotundas de unos muros revocados con barro. Una estrategia en donde el lugar se ha leído más que nada como un clima al que hay que ofrecer resistencia. Un emplazamiento en donde se debe lidiar con temperaturas de 37 grados en verano y volúmenes de nieve de hasta 50 cms. en invierno.
Un artefacto reversible.
Es así que como respuesta ante estas condiciones adversas, es que se decide la construcción de un patio. Una estrategia que lejos de cualquier asociación a arquitecturas vernáculas, se implanta como forma de hacer de la casa un “artefacto reversible”. En donde el patio actué – junto a una disposición en bandas que libera el tercio central de la planta – como un diafragma que permita la apertura y obturación que admite la “respiración” de la casa. Esta misma condición del patio como artefacto de homeostasis, es la que ha eliminado cualquier lectura nostálgica de este espacio, tan recurrente (hasta el hastío) en una parte de la arquitectura chilena de la década de los ochenta.
Patio: una centralidad desplazada
Una estricta grilla – derivada de la modulación de los fardos de paja que constituyen el muro perimetral – impone el orden de la planta, desplazando el patio. Una “centralidad desplazada” en donde el patio aparece como un espacio híbrido, a medio camino entre jardín seco y habitación.
Esta misma grilla es la que determina todas las demás medidas de la casa, alineando la operación de OWAR a una tradición que funda profundas raíces en el movimiento moderno. En donde – y a partir de las lecciones de un Gropius, un Neuffert o un Emilio Duhart – la grilla es la generadora y dominio absoluto de la planta. Es así como el carácter fuertemente ensimismado de la Casa Coya queda reforzado aún más por la decisión de ubicar los vanos de las ventanas a partir de las necesidades de apertura y oclusión de los recintos interiores. Una decisión que refuerza una especie de desinterés por el elemento más representativo de la arquitectura, como es la fachada.
En la Casa Coya todas las fachadas son fijadas por las decisiones tomadas desde la planta, la herramienta de representación de la arquitectura de mayor capacidad analítica. Una decisión que no es gratuita, ya que genera ciertas inestabilidades en la misma obra. Inestabilidades que se traducen en la presencia de múltiples asimetrías y desequilibrios en un cuerpo que desde su exterior aparece como único.
Estos desequilibrios – o des-balances – producen una planta construida a partir de recintos sumamente individualizados. Espacios volcados en sí mismos, de autonomía relativa, en donde hasta las alturas de estos son manejadas para acentuar este aspecto. Haciendo del recorrido – y en este punto si que OWAR coincide con la arquitectura vernácula – una serie de eventos autónomos, particulares.
Tal como las casas de campo chilenas – en donde el patio es el elemento de mediación para el recorrido entre habitación y habitación – en la Casa Coya es a través de este patio de centralidad desplazada, por donde se alcanza el equilibrio ambiental de la casa. A través del cual los recorridos se ordenan y las vistas interiores se despliegan. Una operación de ensimismamiento que libera a la fachada de su papel representativo, en donde el arquitecto ya no busca fijarla a una composición. Sino que es por el contrario, esta se encuentra ensamblada por las decisiones de apertura y oclusión exigidas por esos recintos interiores fuertemente individualizados.
Lo que libera esta aproximación profundamente analítica – en donde la planta y la grilla establecen el orden y las medidas – es la materia de lo que están hechas las superficies de los muros de estas fachadas. Una decisión que devuelve al muro su presencia material – de textura, color, temperatura – dejando a los vanos de ventanas y puertas a la deriva, permitiéndoles que se ajusten, que busquen un acomodo sin restricciones, sobre el fondo sin matices del barro.
El muro y la carpintería.
Este acercamiento profundamente analítico – fijado por la planta – es el que hace que la operación rectora detrás de la Casa Coya – más que la composición – sea el ensamblaje. Ensamblaje que no sólo se traduce en un “acomodo” de los recintos al volumen fijado por la casa, sino que también ensamblaje que aparece en la concepción de un muro que no es muro. Un elemento que oscila entre el acabado y espesores de un muro de carga, y la lógica modular de la carpintería.
Es así como la estructura descansa en un entramado de madera impregnada, entre los cuales se disponen fardos de paja de trigo. Los cuáles no sólo sirven como material aislante natural, sino que como elemento de cohesión entre la carpintería y el revoco de barro. Haciendo del muro tradicional de adobe, un trabajo de precisión, de ensamblaje.
La resistencia del modelo: tierra y agua.
Esta dualidad de un sistema constructivo que oscila entre el muro monolítico y el ensamblaje propio de las carpinterías, dio excelentes resultados de comportamiento ante la acción sísmica. Hecho que quedo comprobado en el pasado terremoto que en febrero del 2010 asoló la zona centro-sur de Chile.
Esta cualidad de resistencia que adoptó la construcción en la Casa Coya, no sólo apareció en la ejecución de la obra, sino que se expandió a las demás herramientas de proyecto y representación escogidos por los arquitectos. Entre los cuales destacó la fabricación de una serie de modelos ejecutados en tierra. Modelos que desde la fragilidad de su material constituyente, ofrecieron ardua resistencia para los arquitectos. Mientras que el modelo de arquitectura en la actualidad aparece más bien como un elemento de seducción que de verificación, en los modelos de OWAR la representación no está exenta de las restricciones propias de la construcción. En donde el modelo – al igual que la obra construida – ofrece resistencia.
Construcción, o las lógicas de lo frágil.
Es así entendida la construcción – como una operación analítica – a través de la cual se despliegan las lógicas de una materia que ofrece resistencia. De ahí que la carpintería, la grilla, los módulos de los fardos, sean todas herramientas destinadas a hacer del acto de edificar, la aplicación de una serie de operaciones lógicas. En donde la construcción se deduce más que se representa. Y para colocarlos en términos matemáticos, se puede decir que esta “es derivada”. Y de ahí los desajustes, des-balances y desequilibrios de recintos que encuentran su acomodo en el orden previsto por la construcción entendida como lógicas. Una construcción que parte desde la fragilidad – no sólo material – sino de la fragilidad que da la certeza de que la arquitectura siempre ofrece resistencia. VKPK.
Casa Coya. Machalí, Chile. Ficha técnica.
Propietario: Agrícola P. Land and Timber Co. Ltda.
Autores : OWAR Arquitectos (Alvaro Benítez, Emilio de la Cerda, Tomás Folch) – Chile / Evan Sellmyer – USA.
Colaboradores: Patricio Larraín, Agustín Infante.
Constructora: Hernández y Bueno Ltda..
Localización: Coya, Machalí. VI Región. Chile.
Superficie construida: 460 M2.
Año de proyecto y construcción: 2008 – 2010.
Asesores técnicos:
Cálculo: José Manuel Morales.
Fardos: María Blender.
Estucos: Sergio Briceño.
Materiales predominantes:
Estructura: madera impregnada.
Techumbre: teja de arcilla artesanal.
Muros: fardos de paja.
Revoque: barro.
Zócalo: piedra.






