Dossier VKPK. Estudio Gualano-Gualano : el bloque y la grilla. Por: Pedro Livni.
En enero de 2009 como consecuencia de la crisis económico-inmobiliaria que comenzó en EEUU y se continúo en Europa, el presidente de los E.E.U.U. – Barack Obama – realizó un llamado en pos de la “responsabilidad”. Solicitud trasladable a muchos ámbitos, y muy contingente frente al gran despilfarro de las arquitecturas de marca, espectaculares, que se han sucedido incontroladamente desde el “efecto Bilbao” (ver al respecto post “La resaca Guggenheim: Abu Dabi o el arte como resistencia”, posteado por Gonzalo Carrasco en vostokproject en marzo 18, 2011).
Alejado de estas prácticas, con tendencia a lo espectacular, en el cono sur es frecuente encontrarse con exploraciones más apropiadas a las diferentes realidades contextuales. Espero no se interprete el termino “apropiado” con el uso que se le dio desde muchas plataformas discursivas en la década de los ochenta.
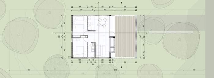
Recientemente el estudio Gualano – Gualano (http://www.gualano.com.uy), ha terminado la “Casa de Bloques”. Una pequeña residencia de temporada, más asociable a un refugio. Resuelta rigurosamente dentro de un prisma de base rectangular, con su envolvente íntegramente materializada con un solo material, bloque lleno y bloque calado, se presenta severa contrastando con el prado de pinos en el que se inserta.
La planta se organiza en cuatro bandas: un exterior semi-cerrado, un interior que se abre sobre el exterior semi-cerrado, una banda de servicios y por último la banda ocupada por los dormitorios.
Una casa que desde la introversión, por un lado, resuelve las contingencias de una casa que probablemente pase cerrada la mayor parte del año. Por el otro, un espacio interior, que desde su negación, implica el tener aprendido el paisaje exterior y reservarlo cuidadosamente.
De repente, se le puede reclamar cierta oscuridad en los dormitorios, aunque en un refugio de playa los mismos solo se ocupan para una siesta o el dormir en la noche.
Por lo pronto, una pequeña obra que se concatena con muchas de las investigaciones más interesantes que se han sucedido en nuestra región, Rafael Iglesia, Smiljan Radic, entre otros. Las cuales desde diferentes ámbitos reconocen que la arquitectura tiene una dimensión constructiva y por lo tanto una buena obra requiere de un saber construir y no de fuegos de artificio o el establecimiento de una grifa. VKPK.
Pedro Livni (Montevideo, 1973). Arquitecto, docente y artista plástico. Candidato a Magister de Arquitectura en la Pontificia Universidad Católica de Chile (http://www.pedrolivni.com)


