La mansión de un millón de dólares: foto-génesis o sobre las tribulaciones del arquitecto de la casa más famosa del mundo. Por: Gonzalo Carrasco Purull + Pedro Livni.
Bill, arquitecto.
Por fin habló el arquitecto, autor de la mansión de Abbottabad (Pakistán) en donde la semana pasada el líder terrorista Osama Bin Laden fue abatido por fuerzas especiales norteamericanas. Este arquitecto – que por motivos de seguridad ha deseado ser llamado por el nombre de “Bill” – ha comentado hoy a los medios de comunicación su experiencia detrás del proyecto que es hoy por hoy, la casa más famosa del mundo. Esta es la historia de Bill:
“En el papel era hermosa…un gran patio de entrada rodeado por una fuente de agua de dos niveles, entablamentos etruscos y frisos estilo renacimiento portugués del siglo XIII. El cliente era al parecer un granjero local que hizo una fortuna con el no pago de $500 en préstamos Kiva. Yo trabajé a través de un tercero ubicado en Génova, que se llamaba Seamus. Me pagaron por el diseño conceptual de la fachada, y a continuación Seamus junto a mis planos se esfumaron. Nunca más supe de él. Luego, a través de Archinect me enteré que mi diseño había sido conseguido por un contratista en hormigones de Islamabad, quien fue contratado para completar los dibujos y construir el proyecto en un tiempo de tres meses por alguien más. Por lo visto, el granjero decidió emplear algo de su fortuna para abrir una licorería en Rosemead, CA. De todos modos, temiendo lo peor, y queriendo rescatar algo para mi portafolio, traté de contactar al contratista para que mi nombre fuera removido de los planos, Al parecer la evaluación de ingeniería había eliminado el teléfono, la televisión por cable y la conexión por internet de mi proyecto…ese maravilloso teatro de 12 asientos…todos esos planes se fueron al infierno. De todos modos, no puedo comentar nada acerca de las habitaciones…nunca se le ofreció al menos una noche de alojamiento de cortesía al diseñador…Supongo que fue para mejor.”
Detrás de las palabras de Bill, se desnudan muchas de las características de una profesión que parece haber cambiado de estado. Para Bill, la arquitectura sigue siendo un arte. Un arte despojado de su tiempo y de las responsabilidades del arquitecto con su época. No es una actividad social. Bill es artista, y como tal se aferra al “sueño del Genio”. Sueño en que se ve al rodear a su proyecto de referencias a otras arquitecturas, a otras épocas. Bill se reconoce por lo tanto partícipe de una tradición, de una historia, de algo grande. Bill desea antes que nada que estos sueños se materialicen, y sufre si estos no pueden llevarse a cabo. Como un padre con su hijo, Bill sufre si su proyecto es mutilado o aparece incompleto. Bill como arquitecto sueña con ser un pequeño rey, en donde su reino es su proyecto. Sólo en el proyecto Bill se siente libre. Para él la arquitectura es un arte autónomo, autonomía que se gana en la representación. En la representación es donde la arquitectura se vuelve un arte pleno y el artista puede ser libre. Bill por eso ama sus fachadas, es en ellas donde se fija la arquitectura. Bill habla reconociendo tipologías: el patio, el corredor, el estanque que anuncia el ingreso. Estas tipologías se corresponden con elementos de arquitectura: cornisas, frisos, entablamentos. Pero Bill como artista de su tiempo, es deudor de su época, y la casa debe posibilitar la vida contemporánea. Es por eso que Bill le agrega a su proyecto las más nuevas tecnologías modernas, las cuales deben encontrar su acomodo de alguna manera en los espacios vacantes entre tanto arte. Porque Bill es sobre todo artista, pero artista de su tiempo. Pero luego viene la desgracia, los filisteos de siempre, que no entienden que el arquitecto produce arte. Y el hijo es despojado de su padre y arrojado a las fieras. Y Bill queda con sus sueños mirando como son otros los que llevan a cabo su obra. Si, esa obra que tal vez ya conocen sus amistades de la universidad como “su proyecto en medio oriente”. Habrá que llamarlos, evitarlos, o cambiar de tema de conversación en las reuniones. Pero, luego está el tema de su portafolio. ¿Debería incluir ese proyecto? Bueno, al menos las fachadas, de algo servirán para agregar espesor a su carpeta. Y todavía está lo de su nombre en los planos de un proyecto que ahora reconoce como bastardo. Fue suyo, pero ahora otros lo han mancillado. Ya no es arte, es solo construcción. Las musas han arrancado despavoridas de las sombras de los ingenieros. A Bill le pagaron por el arte, o sea por el diseño, por el concepto de las fachadas, de la arquitectura. Claro, no podía ser de otra forma. El es un artista y los artistas se encargan de la representación. ¿No fue así desde el Renacimiento? ¿Acaso Brunnelleschi, Bramante, Palladio, podían estar tan equivocados? Bueno, esta la construcción…pero ¿no era Boullée el que decía que pensar en la construcción era confundir los medios con los fines? Si, no podía estar tan equivocado. Y Bill tal vez en medio del trabajo diario, mirara por la ventana y recordara con nostalgia ese magnífico proyecto en Pakistán. ¿Lo habrían publicado las revistas? De seguro que hubiera quedado bien la foto desde el patio de ingreso. Y lo más probable es que hubiesen llegado a su despacho más proyectos y por lo tanto más posibilidades de soñar y hacer arte, o sea arquitectura. ¿Qué ahora vive ahí un líder terrorista? Bueno, no me pregunten a mí, yo sólo soy el arquitecto, el artista, el que sueña.
Piedra Roseta.
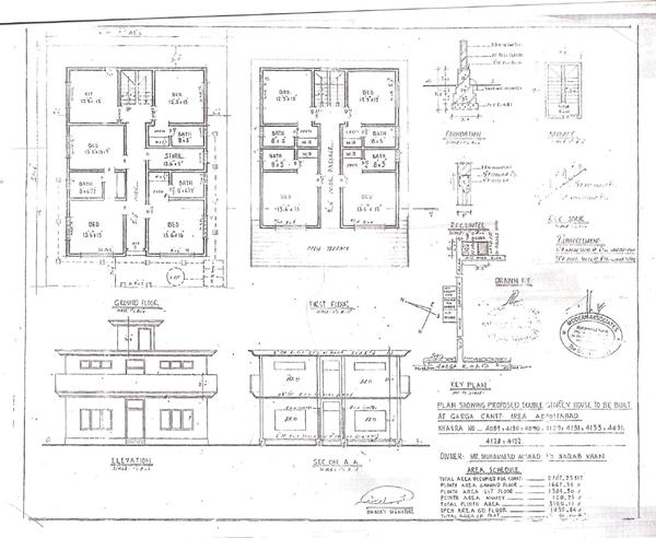
Andrew Buncombe en la edición del pasado 6 de mayo del periódico The Independent, hizo público por primera vez los planos de la “mansión” de Abbottabad (los cuales se pueden descargar en una excelente resolución desde el link: http://blogs.independent.co.uk/wp-content/uploads/2011/05/scan-000000000000-001.jpg ). Unos planos que tal como una Piedra Roseta, pueden servir como herramienta de traducción para un escenario aún en estado gaseoso.
El plano fue facilitado por las autoridades locales y corresponden a los exigidos para obtener el permiso de construcción. El plano fue ingresado en el verano del 2004 por alguien que figura con el nombre de Arshad Khan, el corredor de propiedades de Bin Laden. Por el CI entregado al momento del ingreso – que lo más probable es que se trate de una falsificación – se deduce que Khan tiene 33 años. La casa recibió su recepción en septiembre del 2005, lo que pone en duda la información entregada por algunos reportes paquistaníes según los cuales la casa ya había sido construida el 2003. El expediente muestra además que nunca fueron pagados los impuestos de la propiedad, además de señalar que la casa poseía su propio sistema de limpieza y drenaje. La dirección oficial de la casa es: Casa No.3 , Calle No. 8-A, Garga Road, Thanda Chowa, Hashmi Colony, Abbottabad. Como arquitectos, figuran en la viñeta el nombre de la firma Modern Associates. Como propietarios aparecen los nombres de Muhammad Arshad y Haqab Khan.
En la lámina aparecen los dibujos correspondientes a la planta del primer y segundo piso, faltando el piso tercero y la planta de la cubierta. Figura además la fachada principal y un corte transversal, un plano de ubicación, el detalle tipo de las fundaciones, la planta de la caja de escaleras, su detalle especificando las dimensiones de la huella y contra-huella, junto a un detalle tipo del dintel.
Los dibujos están dibujados con instrumentos y a lápiz. No se ejecutaron mediante ayuda de CAD. No hay diferencia aparente entre los elementos de carga y tabiquería. La primera planta está distribuida a lo largo de un pasillo central que remata en la caja de escaleras. A cada lado, figuran una serie de habitaciones de 3,96 metros de ancho y de largo variable. Longitudes que van desde los 1,5 hasta los 4 metros. En este piso aparecen cuatro dormitorios más una cocina, tres baños y una bodega. El segundo piso no es muy diferente del primero. Sólo que a los cuatro dormitorios y sus respectivos baños individuales, se les suma una terraza a todo el ancho de la fachada principal.
La fachada principal aparece organizada a través de tres niveles, articulados entre sí por una serie de cornisas. Mientras que las ventanas del primer piso tienen una altura que hace posible las vistas hacia el exterior, las ventanas ubicadas en el segundo piso son pequeñas y altas, lo que hace pensar que fueron concebidas más como mecanismo de ventilación. En el tercer nivel sobresale un volumen – ¿la caja de escaleras? – cuya puerta abre hacia la fachada principal, desalineándose del fuerte eje que marcan la puerta de acceso de la primera planta y la puerta que lleva a la terraza del segundo piso. Por el plano de ubicación, se observa que la casa está orientada hacia el sur-oeste, lo que hace prever que la terraza de la fachada principal recibe el sol sobre todo por las mañanas.
Al revisar los planos de la casa de Abbottabad, lo que primero que causa extrañeza es el hecho de que por las superficies y las dimensiones empleadas, sea válido preguntarse: ¿Dónde está la mansión que todos los telediarios hablan? ¿Qué era lo que hacía a esta casa costar un millón de dólares? ¿Qué la hacía tan valiosa? ¿Acaso su arquitectura? No, esto no parece posible. Si hay algo que rezuma Abbottabad es banalidad. ¿Entonces donde estaba el millón de dólares?
Puede ser que el millón de dólares del cual todos hablan haya estado en la recompensa por un viejo que hasta unos meses pasaba el rato planeando el fin del mundo mientras cambiaba de canal en su televisión satelital.
En ese sentido, Abbottabad más que realidad, es especulación pura.
Foto-génesis.
Bill es el autor de la casa hoy por hoy más fotografiada del mundo. En una escena arquitectónica en donde la calidad de una obra suele medirse en términos del número de veces en que son publicadas las fotografías de una obra, es que Bill es el mejor arquitecto del mundo. No hay periódico en que no haya aparecido su obra. Se le ha registrado desde todos los ángulos posibles. De frente y de costado, al mediodía y al atardecer. En primerísimos planos, como también haciendo comparecer a la geografía lejana. Con gente y sin gente a su alrededor. Desde la lejanía, así como desde vistas aéreas. Los mejores fotógrafos de prensa, de las principales agencias noticiosas del mundo – provistos con las mejores cámaras y lentes – han viajado hasta Abbottabad para llevarse un registro de ella. Procesiones de personas se agolpan en sus alrededores para alcanzar ver su arquitectura torpe y banal. Los clicks de las cámaras se suceden uno tras otro. Las cámaras de televisión no paran de registrarla día a día, hora tras hora, en trasmisión diferida como en directo.
Si, en un mundo en que la mejor obra es la más fotografiada, Bill es el mejor arquitecto del planeta.
Pero no se lo puede decir a nadie. VKPK.




